Licensed & Insured | CA License #1060310
The Project

Overview

San Jose, California

View Gallery ↓

This Crossmont Circle home remodel transformed every surface of the residence without altering its original structure. The whole home remodel reimagined the kitchen, three luxury bathrooms, and living spaces with warm modern finishes and high-end materials. From the open concept kitchen remodel to a dramatic wet room in the primary suite, every detail was custom-crafted to align with the homeowners’ lifestyle and vision. Consistent architectural touches and premium selections create a cohesive, elevated feel throughout this completed project.

Project Snapshot

Scope: Kitchen, 3 bathrooms (including wet room), staircase, custom cabinetry, flooring, lighting, built-in bar, breakfast nook
Location: Crossmont Circle, San Jose, CA
Project Type: Modern Home Remodel
Timeline: 3 Months | Timeline completed on schedule
Team Lead: Yoni Asulin / ASL Remodeling
License: CSLB #1060310 | Licensed contractor

Project Highlights

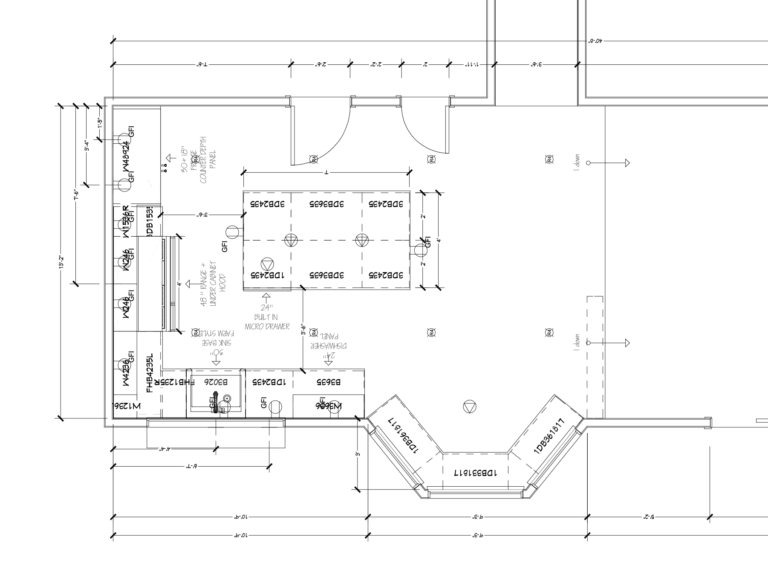
Kitchen Custom Modern Design

The kitchen in this Crossmont Circle home remodel features custom-made maple custom cabinetry throughout. Panel-ready Thermador appliances including the fridge, hood, and dishwasher—integrate seamlessly with the cabinetry for a streamlined appearance. A waterfall island in quartzite anchors the space, featuring an integrated microwave drawer and seating area.

The full slab backsplash in matching quartzite extends floor-to-ceiling, creating dramatic visual impact. A custom walk-in pantry wall provides abundant storage while improving workflow. The built-in breakfast nook includes under-seat deep drawers for hidden storage, maximizing every inch of this luxury kitchen remodel.

This open concept kitchen remodel removed barriers to adjacent living spaces, creating natural conversation flow perfect for both daily life and entertaining guests.

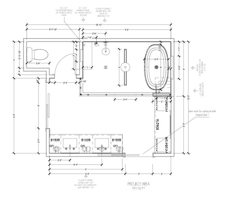
Bathrooms: Spa-Inspired Luxury

Three bathrooms received complete transformations with floating vanities and carefully curated tilework throughout. The primary suite showcases a luxurious wet room with a frameless glass enclosure—a true renovation showcase of modern bath design.

Inside the wet room, a freestanding tub sits within the shower zone, surrounded by dual rain heads and handheld fixtures. Built-in bench seating, recessed niches, and matte black plumbing fixtures create a spa-inspired retreat. Frameless glass panels and minimalist details maintain the clean, contemporary aesthetic.

Whole-Home Upgrades Elevated Living

White oak hardwood flooring flows throughout living areas and bedrooms, unifying the Crossmont Circle home remodel with warm, natural tones. The staircase received a modern update with matte black railing and tempered glass panels that allow light to pass through.

A custom bar area features a wine fridge, glass shelving, and undermount sink—perfect for entertaining. The electric fireplace with a modern flush surround serves as a focal point in the living area. Designer lighting throughout includes recessed cans and statement pendants in the kitchen and stairwell, completing this before-and-after home transformation.

Project Details

Location San Jose
Project Type Whole Home Remodel
Timeline 3 Months
Budget Range 150k+
Category Home Remodeling
Follow Us
Gallery Image
1 / 1

Inspired by This Project?

Let's create something extraordinary together. Schedule a consultation with our team.