Interior Design Services
Choose from foundational layout planning or personalized interior design or go all-in with architectural design services, 3D visualization, and permit-ready documentation.
Design That Drives the Build
Our interior design services combine creative vision with practical expertise to transform your space. A remodel should feel well planned not patched together. If your layout feels off or the space no longer fits your needs, the solution starts with thoughtful custom interior design. At ASL, we help you rethink how your space works through our design-build approach, so the construction phase runs smoother, faster, and with fewer surprises. From 3D visualization to material selection, our home design services ensure every detail is intentional.
Comprehensive Design Services for Every Project
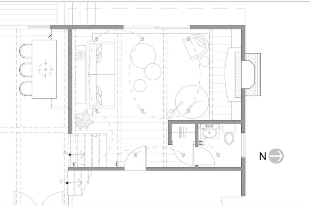
At ASL Remodeling, every successful remodel starts with intentional design. Whether you're planning kitchen design services, bathroom design services, building an addition, or creating an addition, or creating a new layout from scratch, our flexible residential design services give you the freedom to start where you need. Our professional interior designers work with you through a collaborative design process that includes space planning, color palette development, and expert guidance. You can choose one or both of these tailored house design services:
Layout planning, finish selection, 3D rendering, personalized interior design to bring your vision to life.
Construction drafting, architectural plans, structural calculations, and permit handling for code-compliant projects.
Interior Design Services
We offer two levels of interior design service based on your goals and involvement, from essential planning to fully personalized design solutions:
Essential Design
- Layout planning & space planning optimization
- Basic drafting
- Material selection & finish selection
- Showroom coordination
- Preliminary 3D visualization
Personalized Interior Design
- Dedicated professional interior designer
- Layout planning & functional design solutions
- Mood boards and aesthetic planning
- Curated materials, fixture selection, and lighting design
- Photorealistic 3D rendering walkthroughs
- Styling input for cabinetry, color palette development, and more
Ideal for: Homeowners who want a curated, design-driven remodeling experience with expert design professionals.
Our Interior Design Process
From design consultation to permit-ready plans, here's how we guide you through every phase of our design and build services approach:
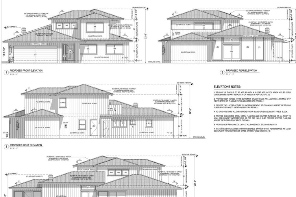
Architectural Design Services
We provide city-ready documentation and full plan development for major remodels, additions, ADUs, or new builds. Our architectural design services integrate seamlessly with our interior design service for comprehensive design solutions.
What's Included:
Ideal for: Projects needing stamped drawings or full plan sets for city permitting
Architectural & Permitting Workflow
This 6-phase process ensures accuracy, feasibility, and smooth city approvals through our integrated design services approach.
- Confirm as-built plans, kickoff with architect
- Draft and revise layouts through space planning
- Approve floor plan with furniture layout considerations
- Architectural plan set (elevations, site plan, electrical)
- Final client approval, arborist report if needed
- Lighting design specifications
- Submit to planning department, address feedback
- Gain approval through our design and architectural services coordination
- Provide detailed estimate based on approved layout, material selection, and finish selection specifications
- Structural drawings + Title 24
- Submit to building department
- Final permit approval
- Align permit issuance with start date
- Prepare for build phase with our design and build services team ready
Why Choose ASL's Design-Build Approach?
We are a licensed general contractor serving the Bay Area. Our reputation is built on transparent communication, expert craftsmanship, and client-focused service.
One Team From Design to Construction
One experienced design team from custom interior design to construction no handoffs
Seamless Integration
Our turnkey design services eliminate third party delays
Accurate Budgeting From Day One
Accurate budgeting from day one with transparent pricing
Fast-Tracked Project Timelines
Fast-tracked timelines through our efficient design-build approach
In-House Permit Management
In-house handling of permits, corrections, and walkthroughs by expert design professionals
Full Visibility & Creative Support
Full visibility and creative support with award-winning design throughout the project
Interior Design Portfolio
Visual previews of real client projects from concept boards to construction ready plans showcasing our modern interior design and custom design solutions.
What Our Clients Say About Our Interior Design Service
Don't just take our word for it, hear from Bay Area homeowners who've experienced our commitment to quality, transparency, and exceptional results. These testimonials reflect the lasting relationships we build and the transformative spaces we create through our design-build approach.
Yelp Reviews
Client Stories
Hear directly from our clients about their remodeling experience and see the beautiful transformations we've created together. These stories showcase why choosing the right remodeling contractor makes all the difference in achieving your vision.
Bathroom Remodeling in Monte Sereno
See how we transformed this bathroom
Home Remodeling in Santa Clara
Complete home transformation
Interior Design Services FAQ
Common questions about our interior design services, home design services packages, and collaborative design process.
Ready to Start Your Design Journey?
Schedule a free consultation to discuss your project and explore which design services are right for you.
Book Free ConsultationServing Bay Area Communities
Our interior design services combine home design services with design-build expertise. From concept to completion, we transform your vision into beautiful, functional spaces. Additionally, we provide seamless kitchen remodeling, bathroom renovations, and home additions throughout the Bay Area.
Design Services Lead To:
Ready to Start Your Design Journey?
Whether you need space planning support, full personalized interior design, or permit-ready architectural design services ASL's in-house team of professional interior designers will guide your vision from day one. Experience the advantages of our design and build services approach with comprehensive design solutions tailored to your home.
Get Your Free Estimate
We'd love to hear about your project